|
Izsludināts: |
04.04.2025 |
|
ID Nr.: |
TNPz 2025/24 |
|
Iepirkuma līguma nosaukums: |
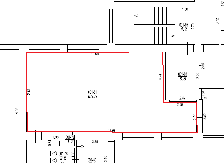
Dundagas pirmsskolas izglītības iestādes "Kurzemīte" grupas "Pienenīte" mācību telpas remonts |
|
Iesniegšanas termiņš: |
2025. gada 30. aprīlis plkst. 10.00. |
|
Statuss: |
Lēmums pieņemts |
|
Līguma veids: |
Būvdarbi |
|
Procedūras veids: |
Cenu aptauja |
|
Kontaktpersona: |
Kontaktpersona: Dundagas pirmsskolas izglītības iestādes "Kurzemīte" vadītāja Rudīte Baļķīte, tālr. 29245414, e-pasts: dundagaspiikurzemite@talsi.lv |
|
Paredzamā līgumcena: |
|
|
Papildu informācija: |
Piedāvājumu var iesniegt, nosūtot uz e-pastu: iepirkumi@talsi.lv līdz 2025. gada 30. aprīlim plkst. 10.00. |
|
Dokumenti: |
Publicēts: 04.04.2025.
Izsludināts: 04.04.2025.
Iesniegšanas datums: 30.04.2025. plkst. 10.00.
Iesniegšanas datums: 30.04.2025. plkst. 10.00.
Statuss
Lēmums pieņemts
Līguma veids
Būvdarbi
Gads
2025. gads